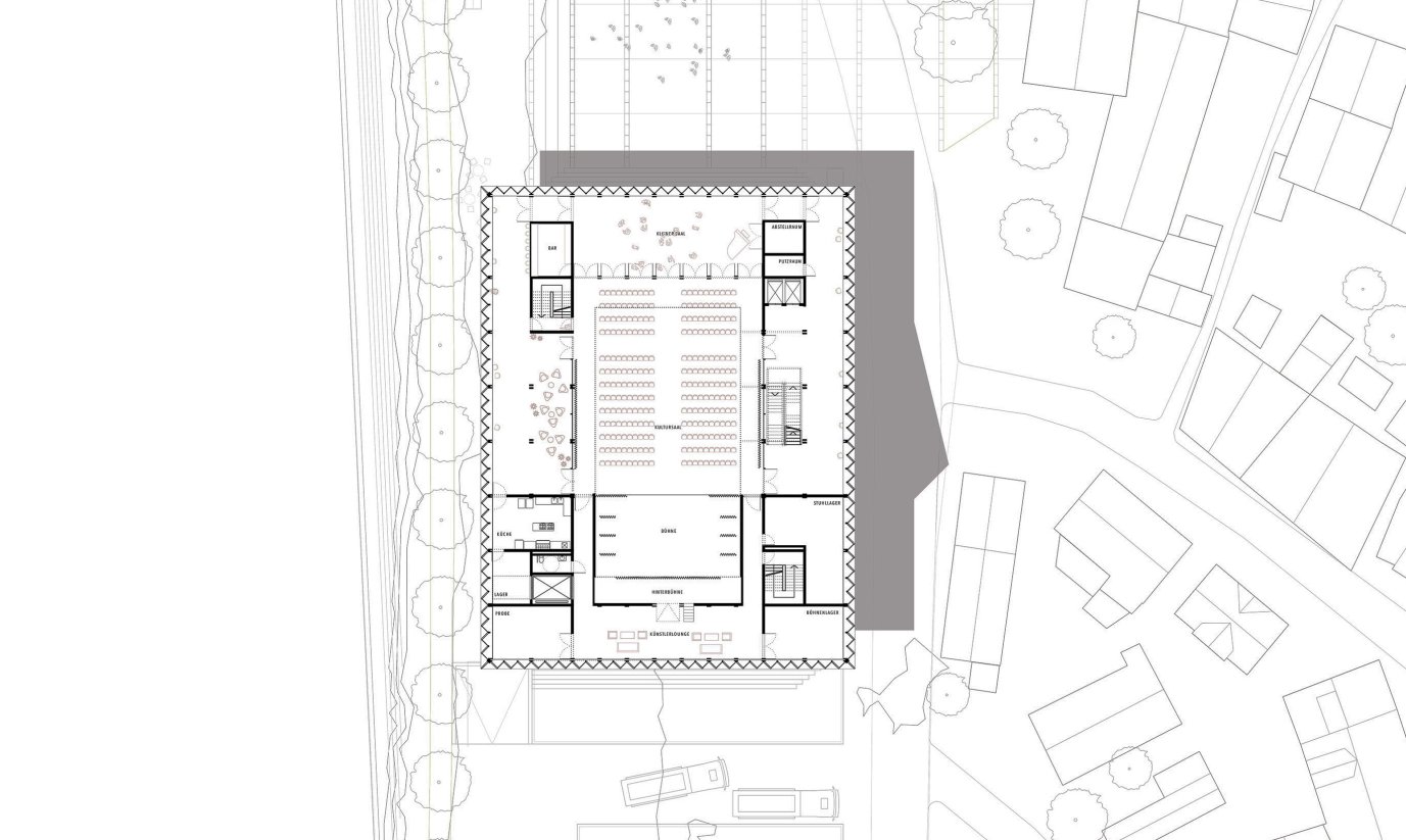
Die Entwurfsaufgabe bestand darin, am zentralen Isarufer von Bad Tölz eine neue architektonische räumliche Setzung zu erarbeiten, ein Kulturhaus. Am Rande des Altstadtkerns - am Isarkai - sollte ein neuer kultureller Schwerpunkt erzeugt werden: neue Aufenthaltsqualitäten, neue Außen- wie Innen-Räume für Einheimische und Besucher von Bad Tölz sollten geschaffen werden. Zentrale Elemente des Entwurfs sind ein Kultursaal , insbesondere auch für junge alternative Kultur- und Unterhaltungsangebote sowie ein kleiner Veranstaltungssaal mit gemeinsamem Foyer, Lounge, Gastronomie.




