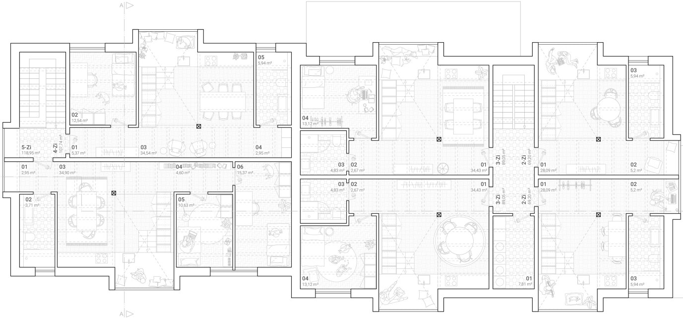
Aufstockung am Weberberg
Aufstockung am Weberberg
Aktuell
Projekte
Professuren
Forschung
Master
International
Architekturgespräche
Anmeldung fehlgeschlagen
Anmeldung temporär blockiert. Bitte später erneut versuchen.
Studierende
Hendrik Dörflinger
Fabian Strüder
Projekt
Aufstockung am Weberberg
Studiengang
Architektur (B.A.)
Professur
Dipl. Arch. ETH Corina Trunz
Gäste
Jahr
2024