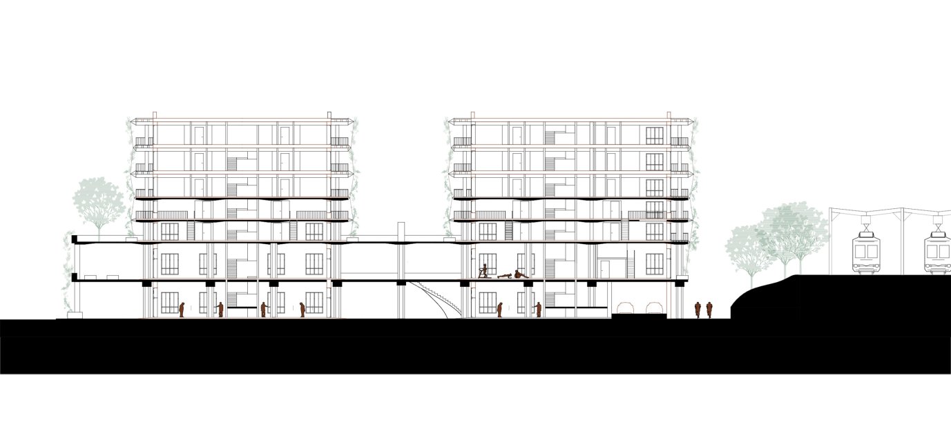
Direkt neben dem Bahnhof Friedrichshafen Hafen, von der Altstadt getrennt durch den Bahndamm, steht ein massives Gebäude, das durch seine unklare Geshossigkeit fast maßstabslos wirkt. Es handelt sich um das Parkhaus Altstadt mit fünf Park- und zwei Einzelhandelsgeschossen. Im Zuge der Mobilitätswende soll es zu einem hybrid genutzten Gebäude mit Quartierszentrum und Wohnen transformiert werden.
Der Entwurf sieht vor, das Volumen aufzubrechen und gleichzeitig die Bestandsstruktur weitestgehend weiter zu nutzen. Das erlaubt eine Belebung der Erdgeschosszone und gleichzeitig eine semi-öffentliche Erschließungsebene für die Wohnungen. Gleichzeitig wird der Fassadenanteil maßvoll erhöht, sodass die Wohnungen angemessen belichtet werden können. Das Grundrisskonzept erlaubt mit einem einfachen System verschieden große Wohneinheiten mit gemeinschaftlich genutzten Räumen und einer hohen Flächeneffizienz. Basierend auf diesen strukturellen Überlegungen gelingt es dem Entwurf aber auch, aus den im Bestand vorhandenen Materialpool heraus eine poetische architektonische Gestaltungsidee zu formulieren.





