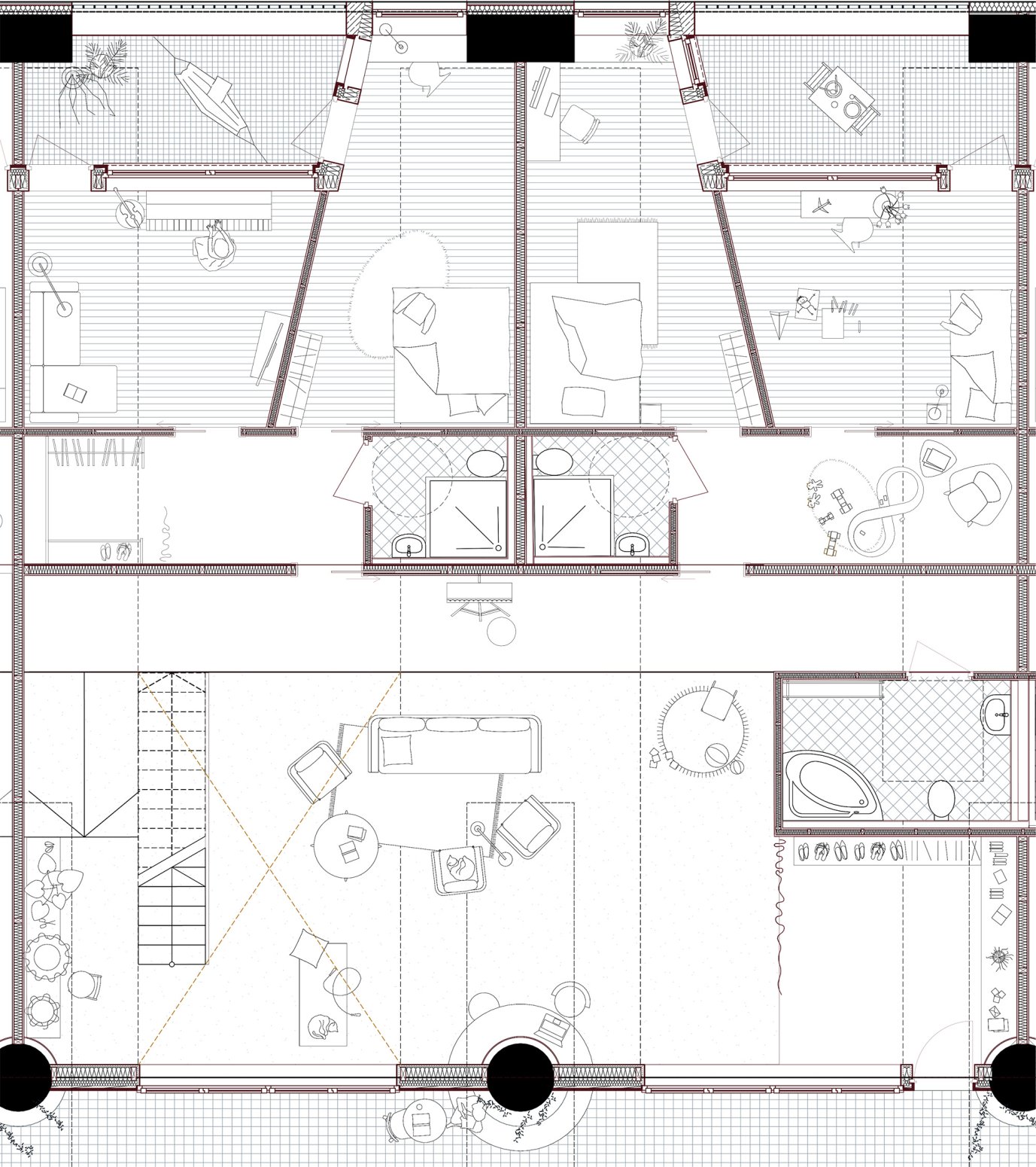
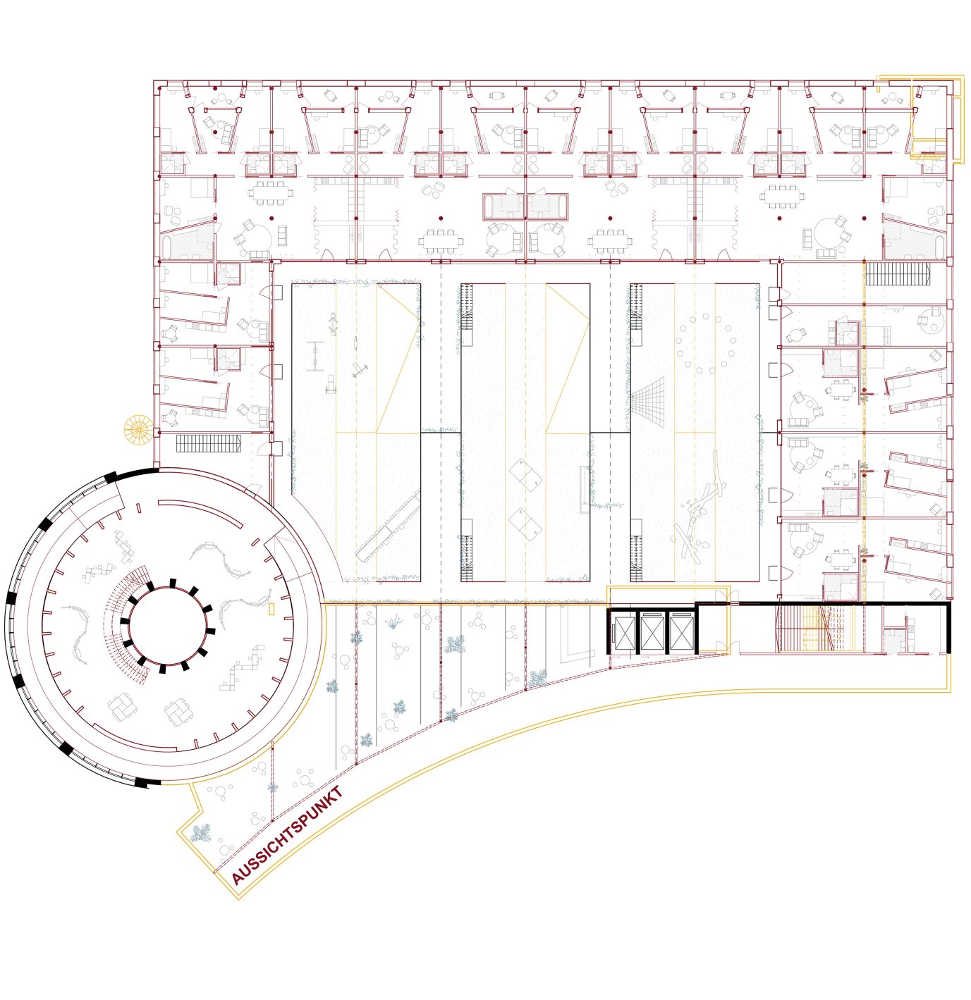
Ziel der Entwurfsaufgabe ist die Transformation eines Parkhauses mit zwei Unter- und fünf Obergeschossen in Friedrichshafen. Das Bestandesgebäude aus den 80er Jahren verfügt über eine weitspannnende Stahlbetonstruktur, welche mehrheitlich weiterverwendet werden soll. Nebst einem Supermarkt, Quartierzentrum soll soll im Gebäude oder durch eine kluge Aufstockung Wohnraum für eine heterogene Zielgruppe entstehen.





