Der «Grüne Baum» ist eine ehemalige Brauerei am südlichen Rande der Altstadt von Biberach mit einem zwar in die Jahre gekommenen, aber bis vor kurzem noch sehr beliebten Gasthof mit einfachen und günstigen Gastzimmern. Seit Corona ist der Gasthof geschlossen und in der Folge ist das weitläufige Areal an eine Immobilienfirma verkauft worden. Soweit die Pläne öffentlich waren, sollen die bestehenden Bauten abgerissen und durch eine historisierende Wohnbebauung ersetzt werden. Dabei würde ein wesentlicher Ort der kollektiven Erinnerungskultur von Biberach verloren gehen. In öffentlichen Foren wurde gegen die Pläne protestiert. Mit der Entwurfsaufgabe im Konstruktiven Entwurf haben wir untersucht, inwieweit es möglich ist, trotz Erhaltung der wesentlichen historischen Bauten das Areal einer neuen baulichen Zukunft zuzuführen. Durch rentable Nutzung von Neubauten könnten kulturelle Nutzung in den Altbauten mitfinanziert werden.
Ziel war es das Potential, das in dem historisch gewachsenen Areal schlummert, zu erkennen und mit Hilfe von architektonischen Mitteln zu neuem Leben zu erwecken. Architektonisch haben wir uns von den engen Vorgaben der Biberacher Stadtbildsatzung etwas befreit. Ausserdem hat uns interessiert mit welchen Materialien und welchen kreislauffähigen Konstruktionen die neuen Gebäude möglichst ressourcenschonend und mit geringem Ausstoss an CO2 gebaut werden können.
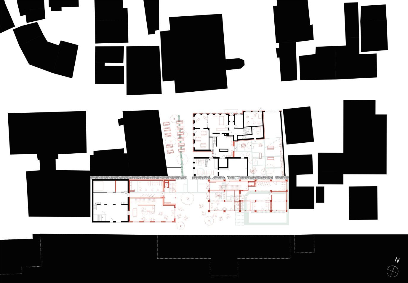
Der Entwurf besticht durch seine umfassende Antwort auf die vielschichtigen Fragestellungen. Das Potential des Areals wird durch die Setzung der Neubauten auf bestechende Weise aktiviert. Die neuen Volumen reagieren trotz der erstaunlichen Grösse sehr subtil auf die bestehende Umgebung. Bestehende Freiräume werden neu gefasst, neue Freiräume werden gezielt geschaffen. Das Nutzungskonzept für das bestehende Gasthaus erlaubt eine Sanierung unter weitgehendem Erhalt der baulichen Substanz. Die notwendige energetische Sanierung wird mit der neuen Fassadenverkleidung sehr klug dazu genutzt das Erscheinungsbild zeitgemäss zu interpretieren. Alt- und Neubauten werden ganz selbstverständlich Teil eines gewachsenen Ensembles. Die vorgeschlagenen Konstruktionen der Neubauten überzeugen durch ihren exemplarischen Charakter und ihre konsequente Entwicklung bis ins Detail. Das beharrliche Ausloten der gestalterischen Möglichkeiten von Material und Konstruktionen geben dem Entwurf einen spezifisch eigenen und trotzdem sehr selbstverständlichen architektonischen Ausdruck.




